GENERAL INFORMATION:


APPROXIMATE TURNAROUND = 2 - 3 WEEKS

CABINETS COME ASSEMBLED


​We are a cabinet supply store with quality cabinets at a great price

Our quality cabinets are all full overlay, maple wood with soft close.

We do not carry cheap, junk cabinets like, thermafoil or particle board or furniture grade. If you want quality cabinets for the best price in town,

then buy in confidence here.


We supply the assembled cabinets for your installers.

​​We do not come out to measure.
Client's installers are the best to check the cabinet layouts
& measures on site before final cabinet order is submitted. 

We do not install. If you need an installer, we have great contractor clients who install our cabinets regularly. There contact info is
reserved for our clients. 


We do not sell countertop.
We do not sell doors without the cabinet boxes.


A Virginia cabinet supply store with quality cabinets at a great price


___________________________________________________________________________________________________________

Contractor Clients 

Layout requests must be submitted by the contractors, builders, or their staff on behalf of their clients.The owner of the wholesale account is responsible for organizing the layout requests from start to finish for their clients. We do not work directly with contractor's clients with layouts or pricing, however contractor clients are very welcome to visit our showroom at their convenience M-F to see the quality of the cabinets & pick up a sample color piece. Thank you.

________________________________________________________________________________________________________________

We​ offer 1 free estimate with 3D images of the cabinet layout
per a project to get an idea of our pricing. Later if you decide to get cabinets from us, Great! When a partial payment is received, our designers can then continue editing & getting the cabinet layout to your vision to prep for ordering. We can also price out another cabinet layout or cabinet estimate with the same quality to compare pricing. Just email it to

us at expresswholesalecabinets@gmail.com.

Also,

Welcome to drop off a cabinet layout or sketch & inspect the quality & colors of the cabinets at your conveninece M-F.


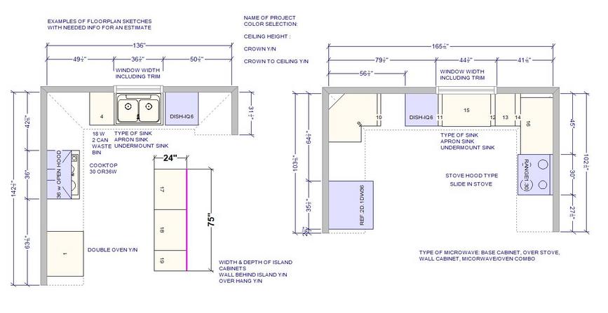
General directions to request a cabinet estimate for your project: 


  • CABINET COLOR
  • Ceiling Height :
  • Crown: Yes/No
  • Crown to Ceiling : Yes/No​
  • Center of plumbing (when set in place)
  • Sink Type: Undermount Sink / Apron Farm Sink
  • Center of appliances (when set in place)
  • Hood Type: Microwave vent / open hood / Decorative Hood/other
  • Stove Type: slide in range or cooktop with width
  • ​Microwave type: if differ than microwave vent over cooktop
  • Any cabinet options. Here is a link to our cabinet opitipns:


a sketch of the floorplan with wall measures, including drywall
doors or window widths including trims (does not have to be to scale)
(if possible) photos of the existing space of each wall from a distance


Below is a visual sample of a floorplan sketch to get an idea of how to help our designers get you an estimate. 

Cabinet Colors Available 

​COLORS COME IN STYLE SHOWN

Cabinet Specs Catalog